태림엔지니어링(주)
팝업레이어 알림
팝업레이어 알림이 없습니다.
로그인
전화하기
관리자
ABOUT
인사말
오시는길
크린 룸
Clean Room
크린모즐
Clean Room System
크린룸장비
Air Handling Unit
F.F.U
Air Shower
Clean Booth
Clean Bench
Clean Locker
Pass Box
Hepa Filter Unit
Fan Filter Unit
HEPA FILTER
Relief Damper
항온항습기
HACCP
HACCP
토탈 크린샤워
에어샤워
갤러리
고객지원
공지사항
자료실
문의하기
크린 룸
크린룸장비
ABOUT
크린 룸
크린룸 장비
HACCP
갤러리
고객지원
Fan Filter Unit
Air Handling Unit
F.F.U
Air Shower
Clean Booth
Clean Bench
Clean Locker
Pass Box
Hepa Filter Unit
Fan Filter Unit
HEPA FILTER
Relief Damper
항온항습기
Fan Filter Unit
개요
Clean Room의 청정도 Hepa Filter의 포집효율 및 환기횟수 즉 부착방법과 설치댓수가 Clean Room의 성능을 크게 좌우한다.
특히 Hepa Filter는 0.3입자 99.97 ~ 99.99%의 높은 효율을 갖고 있기 때문에 Unit에 미세한 틈이 있어도 충분한 성능을 발 휘치 못한다.
당사의 Hepa Filter Unit는 실적과 경험을 토대로 특수접합공법 및 용접 등으로 완전하고 합리적인 Unit가 제작되고 있습니다.
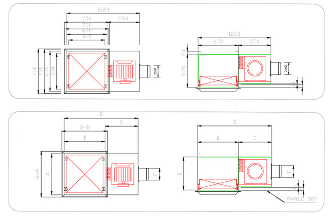
STANDARD FAN FILTER UNIT
형 식
FILTER규격
FAN규격
A
B
C
D
E
F
F.F.U-13
610×305×150
385W
670
375
550
1045
600
200¢
F.F.U-17
610×610×150
450W
670
650
550
1200
600
250¢
F.F.U-32
610×610×292
500W
670
1280
550
1830
650
300¢
주문형 FAN FILTER UNIT
개인정보 처리방침
| 오시는길
태림엔지니어링(주) | 대표 : 임병돈 | 사업자등록번호 : 124-86-59247
주소 : 경기 화성시 우정읍 버들로 77-45 | TEL : 031-366-0762
E-Mail : qudehs2000@naver.com
Copyright 태림엔지니어링(주) CO.,LTD.All Rights Reserved.
상단으로